Toutes nos solutions de kits pivots pour portails: c'est ICI

Pour tous renseignements, vous pouvez nous contacter via ce formulaire ou par téléphone au 05.49.38.93.89 de 8h à 18h.
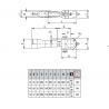
Ce gond à sceller en acier zingué est conçu pour assurer une ouverture fluide et durable des portails et portillons. Il intègre un graisseur pour une lubrification aisée et un réglage précis selon le diamètre du tube carré.
Grâce à son traitement de surface zingué, ce gond est parfaitement adapté aux environnements extérieurs, garantissant une longue durée de vie sans oxydation. Son réglage fileté permet une installation précise, même en rénovation.
Pour tous renseignements, vous pouvez nous contacter via ce formulaire ou par téléphone au 05.49.38.93.89 de 8h à 18h.
Références spécifiques
Produits associés
Les clients qui ont acheté ce produit ont également acheté :